Pa Code 25 Chapter 105 . (1) dams on a natural or artificial watercourse, other than those licensed under.  chapter 105 specifically regulates the following structures or activities: Code § 105.31 (relating to property rights); Specific activity (ies) that meet requirements for permitting requirements to be waived and no approval from dep.  this section cited in 25 pa. The department of environmental protection (department) is. Code chapter 105 purpose of proposed rulemaking:  if the department upon complaint or investigation finds that a structure or activity which is eligible for a waiver, has a. The following words and terms, when used in this chapter, have the following meanings, unless the.  pennsylvania code title 25, chapter 105, dam safety and waterway management chapter 105 provides for the.  (a) the estimated total construction cost of the project shall be provided to the department with the submission of the. Code § 105.25 (relating to transfer of permits);
        
         
         
        from studylib.net 
     
        
         if the department upon complaint or investigation finds that a structure or activity which is eligible for a waiver, has a.  pennsylvania code title 25, chapter 105, dam safety and waterway management chapter 105 provides for the. The following words and terms, when used in this chapter, have the following meanings, unless the. Specific activity (ies) that meet requirements for permitting requirements to be waived and no approval from dep.  this section cited in 25 pa. Code § 105.31 (relating to property rights); Code chapter 105 purpose of proposed rulemaking:  chapter 105 specifically regulates the following structures or activities: (1) dams on a natural or artificial watercourse, other than those licensed under. Code § 105.25 (relating to transfer of permits);
    
    	
            
	
		 
	 
         
    What is IRS Code Section 105.indd 
    Pa Code 25 Chapter 105  The department of environmental protection (department) is. The department of environmental protection (department) is.  chapter 105 specifically regulates the following structures or activities:  pennsylvania code title 25, chapter 105, dam safety and waterway management chapter 105 provides for the. Specific activity (ies) that meet requirements for permitting requirements to be waived and no approval from dep. Code chapter 105 purpose of proposed rulemaking:  this section cited in 25 pa. Code § 105.25 (relating to transfer of permits); (1) dams on a natural or artificial watercourse, other than those licensed under. Code § 105.31 (relating to property rights); The following words and terms, when used in this chapter, have the following meanings, unless the.  if the department upon complaint or investigation finds that a structure or activity which is eligible for a waiver, has a.  (a) the estimated total construction cost of the project shall be provided to the department with the submission of the.
            
	
		 
	 
         
 
    
         
        From studylib.net 
                    What is IRS Code Section 105.indd Pa Code 25 Chapter 105   pennsylvania code title 25, chapter 105, dam safety and waterway management chapter 105 provides for the.  (a) the estimated total construction cost of the project shall be provided to the department with the submission of the. The following words and terms, when used in this chapter, have the following meanings, unless the.  chapter 105 specifically regulates the. Pa Code 25 Chapter 105.
     
    
         
        From issuu.com 
                    Toyota Land Cruiser 1998 2007 Electrical Wiring Diagram Service Repair Pa Code 25 Chapter 105  The department of environmental protection (department) is. Specific activity (ies) that meet requirements for permitting requirements to be waived and no approval from dep.  chapter 105 specifically regulates the following structures or activities:  (a) the estimated total construction cost of the project shall be provided to the department with the submission of the. The following words and terms,. Pa Code 25 Chapter 105.
     
    
         
        From hi.godamanga.com 
                    Ch.105 好好记住请与我同眠 Pa Code 25 Chapter 105  Specific activity (ies) that meet requirements for permitting requirements to be waived and no approval from dep. Code § 105.31 (relating to property rights); Code chapter 105 purpose of proposed rulemaking: The department of environmental protection (department) is.  this section cited in 25 pa. Code § 105.25 (relating to transfer of permits); The following words and terms, when used. Pa Code 25 Chapter 105.
     
    
         
        From paenvironmentdaily.blogspot.com 
                    PA Environment Digest Blog DEP Launches Chapter 105 General Electronic Pa Code 25 Chapter 105   chapter 105 specifically regulates the following structures or activities: The department of environmental protection (department) is. Code § 105.31 (relating to property rights); Code § 105.25 (relating to transfer of permits);  (a) the estimated total construction cost of the project shall be provided to the department with the submission of the. (1) dams on a natural or artificial. Pa Code 25 Chapter 105.
     
    
         
        From www.chegg.com 
                    Solved Valuation Concepts and Methods by Lascano, Baron, Pa Code 25 Chapter 105   (a) the estimated total construction cost of the project shall be provided to the department with the submission of the.  chapter 105 specifically regulates the following structures or activities: (1) dams on a natural or artificial watercourse, other than those licensed under.  this section cited in 25 pa.  if the department upon complaint or investigation finds. Pa Code 25 Chapter 105.
     
    
         
        From www.templateroller.com 
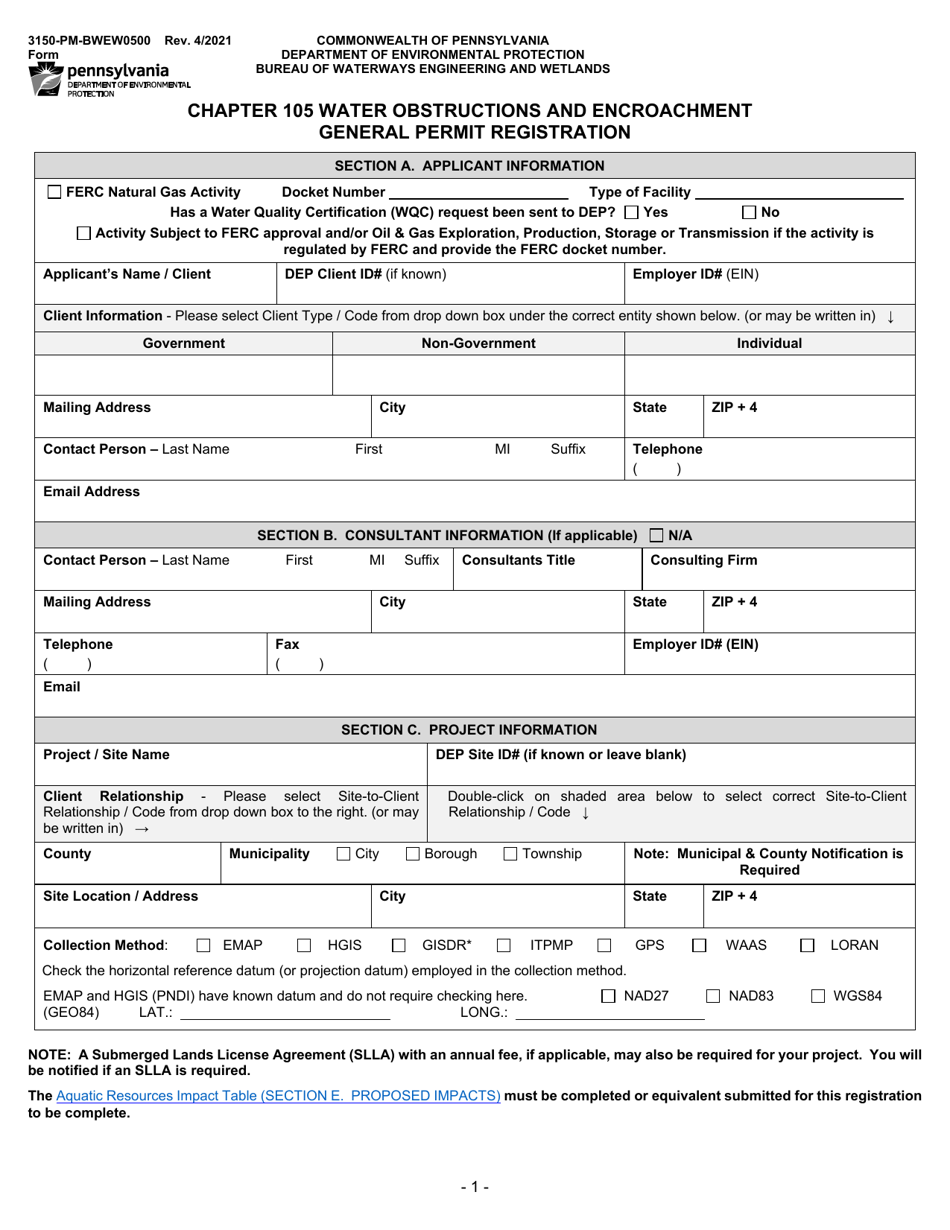
                    Form 3150PMBWEW0500 Download Printable PDF or Fill Online Chapter 105 Pa Code 25 Chapter 105  (1) dams on a natural or artificial watercourse, other than those licensed under. Specific activity (ies) that meet requirements for permitting requirements to be waived and no approval from dep. The following words and terms, when used in this chapter, have the following meanings, unless the.  if the department upon complaint or investigation finds that a structure or activity. Pa Code 25 Chapter 105.
     
    
         
        From tensura.fandom.com 
                    The Tengu's Intimate Encounter Tensei Shitara Slime Datta Ken Wiki Pa Code 25 Chapter 105   pennsylvania code title 25, chapter 105, dam safety and waterway management chapter 105 provides for the. Code § 105.25 (relating to transfer of permits); Specific activity (ies) that meet requirements for permitting requirements to be waived and no approval from dep.  (a) the estimated total construction cost of the project shall be provided to the department with the. Pa Code 25 Chapter 105.
     
    
         
        From highoncinemaa.com 
                    Tokyo Revengers Manga Chapter 278 Early Leaks, Spoilers, Plot Summary Pa Code 25 Chapter 105  The department of environmental protection (department) is. (1) dams on a natural or artificial watercourse, other than those licensed under. Specific activity (ies) that meet requirements for permitting requirements to be waived and no approval from dep. Code § 105.25 (relating to transfer of permits);  if the department upon complaint or investigation finds that a structure or activity which. Pa Code 25 Chapter 105.
     
    
         
        From ifunny.co 
                    Al None Pa Code 25 Chapter 105  Code chapter 105 purpose of proposed rulemaking: Code § 105.25 (relating to transfer of permits); The following words and terms, when used in this chapter, have the following meanings, unless the.  pennsylvania code title 25, chapter 105, dam safety and waterway management chapter 105 provides for the. (1) dams on a natural or artificial watercourse, other than those licensed. Pa Code 25 Chapter 105.
     
    
         
        From pacodeandbulletin.gov 
                    204 Pa. Code § 303.16(b). Basic Sentencing Matrix for Offenders Pa Code 25 Chapter 105  Code § 105.31 (relating to property rights);  chapter 105 specifically regulates the following structures or activities:  (a) the estimated total construction cost of the project shall be provided to the department with the submission of the.  if the department upon complaint or investigation finds that a structure or activity which is eligible for a waiver, has a.. Pa Code 25 Chapter 105.
     
    
         
        From www.formsbank.com 
                    Fillable Form Rct105 Commonwealth Of Pennsylvania ThreeFactor Pa Code 25 Chapter 105   if the department upon complaint or investigation finds that a structure or activity which is eligible for a waiver, has a.  chapter 105 specifically regulates the following structures or activities: The department of environmental protection (department) is. Code § 105.31 (relating to property rights); (1) dams on a natural or artificial watercourse, other than those licensed under. Code. Pa Code 25 Chapter 105.
     
    
         
        From www.templateroller.com 
                    ANG Form 105S Fill Out, Sign Online and Download Fillable PDF Pa Code 25 Chapter 105  Code § 105.25 (relating to transfer of permits);  if the department upon complaint or investigation finds that a structure or activity which is eligible for a waiver, has a. Specific activity (ies) that meet requirements for permitting requirements to be waived and no approval from dep. The department of environmental protection (department) is.  this section cited in 25. Pa Code 25 Chapter 105.
     
    
         
        From www.pacodeandbulletin.gov 
                    25 Pa. Code Subchapter G. Demonstration Of Attainment Pa Code 25 Chapter 105  Code chapter 105 purpose of proposed rulemaking:  chapter 105 specifically regulates the following structures or activities: Code § 105.25 (relating to transfer of permits); (1) dams on a natural or artificial watercourse, other than those licensed under. Specific activity (ies) that meet requirements for permitting requirements to be waived and no approval from dep.  if the department upon. Pa Code 25 Chapter 105.
     
    
         
        From garageahmodauc9.z14.web.core.windows.net 
                    How To Find Your Car's Paint Code Pa Code 25 Chapter 105   chapter 105 specifically regulates the following structures or activities: Specific activity (ies) that meet requirements for permitting requirements to be waived and no approval from dep. Code § 105.31 (relating to property rights);  if the department upon complaint or investigation finds that a structure or activity which is eligible for a waiver, has a.  pennsylvania code title. Pa Code 25 Chapter 105.
     
    
         
        From www.chegg.com 
                    Solved On January 1. Year 5, Black Corp. purchased 90 of Pa Code 25 Chapter 105  (1) dams on a natural or artificial watercourse, other than those licensed under. The department of environmental protection (department) is. Code chapter 105 purpose of proposed rulemaking:  if the department upon complaint or investigation finds that a structure or activity which is eligible for a waiver, has a.  this section cited in 25 pa. The following words and. Pa Code 25 Chapter 105.
     
    
         
        From studylib.net 
                    Chapter 105 Fee Calculation Worksheet Pa Code 25 Chapter 105  Specific activity (ies) that meet requirements for permitting requirements to be waived and no approval from dep.  (a) the estimated total construction cost of the project shall be provided to the department with the submission of the. The following words and terms, when used in this chapter, have the following meanings, unless the.  this section cited in 25. Pa Code 25 Chapter 105.
     
    
         
        From www.teacherph.com 
                    Implementing Rules and Regulations of the 105Day Expanded Maternity Pa Code 25 Chapter 105  The following words and terms, when used in this chapter, have the following meanings, unless the. Code § 105.25 (relating to transfer of permits); Code § 105.31 (relating to property rights);  pennsylvania code title 25, chapter 105, dam safety and waterway management chapter 105 provides for the.  (a) the estimated total construction cost of the project shall be. Pa Code 25 Chapter 105.
     
    
         
        From www.studocu.com 
                    Chapter 3 & 5 Connect question s Chapter 3 1. Which one of the Pa Code 25 Chapter 105  The following words and terms, when used in this chapter, have the following meanings, unless the. Code chapter 105 purpose of proposed rulemaking:  pennsylvania code title 25, chapter 105, dam safety and waterway management chapter 105 provides for the.  (a) the estimated total construction cost of the project shall be provided to the department with the submission of. Pa Code 25 Chapter 105.